Skip To Content

110 Allen Street

Seneca, SC 29678
  • $209,000
  • STATUS: Closed
  • ON SITE: 424 Days
  • ID#: 1545660
Sold - 06/16/2025
$209,000
SOLD - 06/16/2025
  • 3
    BEDS
  • 0.34
    ACRES
  • 2
    BATHS
  • 0
    1/2 BATHS
  • 0700-999
    SQFT
  • $0
    $/SQFT
Neighborhood:
Type:
Single-Family Home
Built:
2024
County:
Area:

School Information

Elementary School:
Middle School:
High School:
Offered by Scott Lish of EXP Realty, LLC

Description

Welcome to your pristine, never-before-occupied home! Located in the heart of downtown Seneca, SC, at 110 Allen Street, this beautiful residence features 3 bedrooms and 2 full bathrooms. The open living area acts as the heart of the home, where the high ceilings foster a warm and welcoming ambiance, giving the space a sense of spaciousness. This home has been built with great quality craftsmanship. Solid plywood cabinets, with dovetail joints & European soft close hinges and drawers, Granite countertops, and Luxury vinyl plank flooring, throughout the home. This home is ideally situated in the thriving downtown area of Seneca, SC. You can reach Lake Keowee in just a few minutes, and it's only a quick 15-minute drive to Clemson, SC, or under an hour to Greenville, SC. You'll find plenty of fantastic dining options, entertainment, fitness centers, shopping, and the PRISMA Hospital system is nearby. This prime location grants you access to everything Oconee County, SC has; including the three major lakes: Jocassee, Keowee, and Hartwell. Enjoy the breathtaking views of the Blue Ridge Mountains, where you can explore countless waterfalls and nature trails with your family and friends for many years to come. Don't miss out on this opportunity to own a NEW home at a fantastic price! This property would be fantastic as your primary residence, a second home, or a rental property. It's proximity to the mountains and lakes adds an incredible allure! With this incredible price, we anticipate this opportunity will be snatched up fast. Contact us to schedule your showing today! The seller is open to owner financing; please call for more information.

Monthly Payment Calculator



© 2026 Greater Greenville Association of Realtors Multiple Listing Service. All rights reserved. IDX information is provided exclusively for consumers' personal, non-commercial use and may not be used for any purpose other than to identify prospective properties consumers may be interested in purchasing. Information is deemed reliable but is not guaranteed accurate by the MLS or Laurie Hughes and Pam Borghesani | Bluefield Realty Group. Data last updated 2026-03-16T23:01:25.503.
www.mygreenvillescrealestate.net/homes/159463340
Print Image

110 Allen Street Seneca, SC 29678

  • Price: $189,900
  • Status: Closed
  • On Site: 424 Days
  • Updated: 41 min ago
  • ID#: 1545660
3
Beds
2
Baths
0
½ Baths
0.34
Acres
0700-999
SQFT
$0
$/SQFT
2024
Built
Neighborhood:
None
County:
Oconee
Area:
Other
Elementary School:
Blue Ridge
Middle School:
Seneca
High School:
Seneca
Property Description
Welcome to your pristine, never-before-occupied home! Located in the heart of downtown Seneca, SC, at 110 Allen Street, this beautiful residence features 3 bedrooms and 2 full bathrooms. The open living area acts as the heart of the home, where the high ceilings foster a warm and welcoming ambiance, giving the space a sense of spaciousness. This home has been built with great quality craftsmanship. Solid plywood cabinets, with dovetail joints & European soft close hinges and drawers, Granite countertops, and Luxury vinyl plank flooring, throughout the home. This home is ideally situated in the thriving downtown area of Seneca, SC. You can reach Lake Keowee in just a few minutes, and it's only a quick 15-minute drive to Clemson, SC, or under an hour to Greenville, SC. You'll find plenty of fantastic dining options, entertainment, fitness centers, shopping, and the PRISMA Hospital system is nearby. This prime location grants you access to everything Oconee County, SC has; including the three major lakes: Jocassee, Keowee, and Hartwell. Enjoy the breathtaking views of the Blue Ridge Mountains, where you can explore countless waterfalls and nature trails with your family and friends for many years to come. Don't miss out on this opportunity to own a NEW home at a fantastic price! This property would be fantastic as your primary residence, a second home, or a rental property. It's proximity to the mountains and lakes adds an incredible allure! With this incredible price, we anticipate this opportunity will be snatched up fast. Contact us to schedule your showing today! The seller is open to owner financing; please call for more information.
Exterior Features

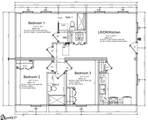
Driveway Paved Concrete Exterior Features Porch-Front Exterior Finish Vinyl Siding Foundation Crawl Space Garage Capacity 0 Garage Type See Parking Features Lot Description Level Parking Garage Assigned Parking 2 Sp Roof Composition Shingle Storage Space None Stories 1 Style Ranch

Interior Features

Appliances DishwasherRefrigeratorStand Alone Rng-ElectricMicrowave-Built In Basement None Bedroom2 Size 11x13 Bedroom3 Size 9x13 Bedrooms Main Level 3 Cooling System Electric Fireplace None Fireplaces 0 Floors Luxury Vinyl Tile/Plank Full Baths On Main Lvl 2 Heating System Electric Interior Features Ceiling 9ft+Ceiling FanCeiling SmoothCountertops GraniteSmoke DetectorWalk In ClosetPantry – Closet Kitchen Size 11x13 Laundry Closet Style Living Room Size 15x13 Master Bedroom Size 12x13 Primary Bedroom Features Full BathShower OnlyWalk-in Closet Specialty Room None Water Heater Electric

Property Features

Additional Fees None Approx Age New/Never Lived In Auction YN No Community Amenities None Docs On File House Plans Documents With Offer None Foreclosure YN No Garbage Pickup Public Hoa YN No HOAFee Includes None Lead Based Paint Disc Req No Res Property Disc Req No Sewer Public Short Sale YN No Special Finances Owner May Finance Water Public

Listing information © 2026 Greater Greenville Association of Realtors MLS
Listing provided by Scott Lish of EXP Realty, LLC: 888-440-2798.


© 2026 Greater Greenville Association of Realtors Multiple Listing Service. All rights reserved. IDX information is provided exclusively for consumers' personal, non-commercial use and may not be used for any purpose other than to identify prospective properties consumers may be interested in purchasing. Information is deemed reliable but is not guaranteed accurate by the MLS or Laurie Hughes and Pam Borghesani | Bluefield Realty Group. Data last updated 2026-03-16T23:01:25.503.
 
https://bt-photos.global.ssl.fastly.net/ggar/1280_boomver_1_1545660-2.jpg https://bt-photos.global.ssl.fastly.net/ggar/1280_boomver_1_1545660-2.jpg https://bt-photos.global.ssl.fastly.net/ggar/1280_boomver_1_1545660-2.jpg
Logo
Laurie Hughes and Pam Borghesani | Bluefield Realty Group
100 Executive Center Dr. Suite 101
Greenville SC, 29615
Offered by Scott Lish of EXP Realty, LLC